“Min mission er, at at gøre hverdags-arkitektur tilgængelig for alle, som ønsker at ændre deres fysiske rammer.”
Læs om 3 forskellige projekter…
‘VILLA VALNØD’ - NYBYGGERI
Villa-arkitektur i særklasse
På en skrænt i Gl. Risskov ligger en moderne villa i sandfarvede tegl, naturligt indpasset mellem historiske bygninger, skov og hav.
Villaen er udviklet i tæt dialog med en familie, der ønskede et hjem med karakter, ro og autenticitet. Huset er opført i to etager med kælder og udført i gedigne materialer, hvor en enkel og klassisk formgivning skaber en harmonisk relation til omgivelserne.
Indvendigt organiseres boligen omkring en gennemgående teglvæg – husets arkitektoniske rygrad. Væggen rummer køkken, pejs, teknik og opbevaring og adskiller bevægelse fra ophold og adskiller husets rolige opholdsrum fra de fælles.
I husets flow bevæger man sig konstant i samspil med væggen, hvor nøje placerede kig og åbninger trækker lyset og konteksten ind.
Have, ankomst og carport er ligeledes disponeret af Studio GENBLIK med fokus på materialitet, genbrug og en samlet helhed mellem hus og landskab.
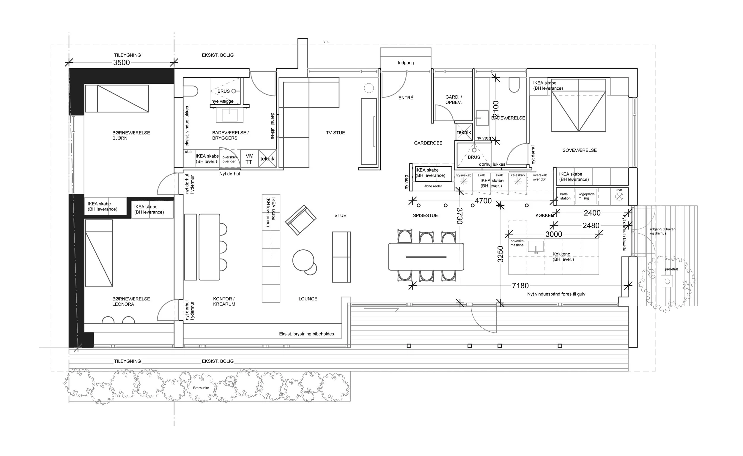
RENOVERING AF 60’ER VILLA
Udgangspunkt i de eksist. rammer
Renoveringen af denne 60’er villa i Aarhus tager udgangspunkt i en grundlæggende respekt for det eksisterende og de givende rammer. Projektet er båret af ønsket om at arbejde med husets iboende kvaliteter frem for at erstatte dem – at forfine, forenkle og give nyt liv gennem nænsom transformation.
Arkitekturen tager form i spændingsfeltet mellem fortid og nutid. Oprindelige strukturer, proportioner og materialer bevares, hvor de rummer værdi, og suppleres med nye greb, der skaber klarhed, sammenhæng og ro. Fokus er på dagslys, funktionelle rumforløb og en ærlig materialitet, der ældes med værdighed - og ikke mindst bedre udnyttelse af kvm. uden at gøre projektet unødigt stort (og dyrt!).
Målet er ikke at skabe noget perfekt eller tidløst i klassisk forstand, men at forme rum med menneskelig forankring til familien som skal leve der. Rum der understøtter hverdagslivet og giver plads til nærvær. En arkitektonisk proces, hvor omtanke, enkelhed og respekt for stedets historie var de bærende grundsten i projektet.
KOMPLET HAVE-DESIGN
Udgangspunkt i de eksist. rammer
Projektet omfatter nytænkning af havens rum omkring en 60’er villa i Skanderborg med hovedvægt på ankomsten og forhaven som var mangelfuld, åben og upersonlig. Foruden en komplet tegnet haveplan der rummede hele matriklen lagde projektet særlig vægt på en ny mangfoldig beplantning; træer, buske, blomster samt belægninger og overgange.
Formålet med projektet var at give kunden et visuelt overblik over grundens muligheder samt udvikle og udnytte de forskellige haverum med fokus på både funktionalitet, æstetik og biodiversitet.
Haven rummede et stort uudnyttet potentiale for at blive opdelt i tydelige og stemningsfulde haverum - og med en klar situationsplan samt en beplantnings-strategi er kunden nu i gang med deres drømme-have-projekt.

